A hillside plot adjacent to a forest reserve overlooking the Khadakwasla Lake had a minimum “flat area” for construction of the required second home for a Mumbai based family. The view of the lake was breathtaking, however it was skewed to one side. It was imperative to make the vista the focal point of the home while keeping in mind the 10,000 plus sq.ft area requirement for the client.
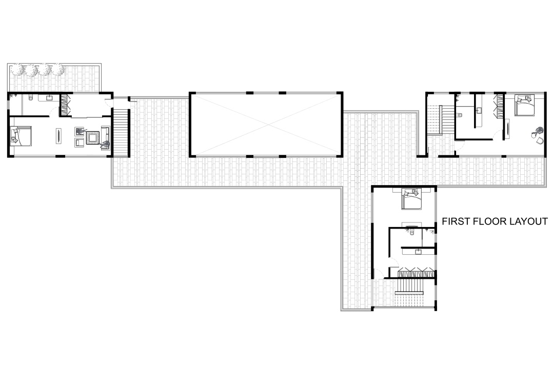
RSA excavated the land to “sink” the structure below the road level ensuring privacy for the living spaces. A powerful and solid grey shade was chosen for the entire built structure, keeping the elements of nature in mind. The key design element that brings this habitat together is the confluence of 4 building blocks that work together in a cross axis. One arm of the axis leads to an infinity bridge that seems to hover over the forest while offering unparalleled views of the lake in the distance. The unique architecture and site lend to creating several outdoor courtyards that serve as multi-functional spaces which the owners use as per weather and time of day.

